Používame cookies

Súbory cookie a ďalšie technológie sledovania používame na zlepšenie vášho zážitku z prehliadania našich webových stránok, na to, aby sme vám zobrazovali prispôsobený obsah a cielené reklamy, na analýzu návštevnosti našich webových stránok a na pochopenie toho, odkiaľ naši návštevníci prichádzajú. Viac info

Nový 1,5 izb. BYT/KANCELÁRIA V HISTORICKEJ VILE /PALISÁDY

Popis nehnuteľnosti

Zdieľať na Facebooku

REBECCA REAL ESTATE Vám ponúka na prenájom :

- úplne nový 1,5 izbový Byt /Kancelária s menšou zahrádkou a so samostatným vchodom a parkovacím státím (možnosť zaparkovať za sebou aj 2 autá)

PRESTÍŽNA Historická Honosná Vila - kompletne novo honosne zrekonštruovaná

K dizpozícii ešte dva byty. Prízemie a 1.poschodie (3 izbobý byt so samostatnou kuchňou, terasou a 2x parkovaním.)

Prízemie:

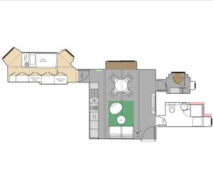
1 izbový Byt alebo nebytový priestor (kancelária) 41 m2  + k bytu prislúcha aj záhradka cca 10 m2 a vonkajšie zdielané parkovacie státie v areáli vily za bránou.

V byte je zvlášť menšia kuchynka,  obývacia izba so spacou časťou, kúpeľna s toaletou a vstupná chodba. 

Aktuálne je ešte možnosť výberu dispozičného riešenia zariadenia !! Veľká výhoda! 

Cena prenájmu vrátane zdielaného externého parkovacieho miesta v areali vily:  1050,- EUR /mes + Energie 

Parkovanie možné aj na hornej a dolnej ulici - PASS platené mestké parkovanie

Celková  plocha objektu byty + nebytové priestory + spol. priestory je 565,39 m²

Ostatné priestory sú už prenajaté lukratívnemu klientovi.

LOKALITA:

Nehnuteľnosť sa nachádza v tej najprestížnejšej časti Palisád. Palisády sú už tradične jedna z najlepších a najprestížnejších bratislavských lokalít. Vila sa nachádza pár minút chôdze od bratislavského hradu, čo len umocňuje jej atraktivitu. Je známa výbornou občianskou vybavenosťou, v pešej vzdialenosti sa nachádza historické centrum mesta, nekonečne veľa kaviarní, reštaurácií, bánk, lekární, zdravotných zariadení, obchodov, športovísk a mnoho iného. Blízkosť prezidentského paláca znásobuje bezpečnosť bývania v lokalite. Súčasne prezidentská záhrada ponúka možnosti prechádzok v krásnom zelenom prostredí. 

Predmetná nehnuteľnosť ako historická vila v súčasnosti prešla kompletnou rekonštrukciou so zachovaním iba obvodových múrov a historických prvkov a táto vila bola tak zachovaná ako pôvodný architektonický skvost. 

VYBAVENIE:

Súčasťou je inteligentné riadenie domu Loxone, podlahové kúrenie. 

Celý objekt je strážený kamerovým systémom a SBS.

Strešná Záhrada - spoločne využívané časti: zeleň nad oporným múrom a tienistá terasa so sedením a strešná záhrada nad garážou. Nižšie a vyššie kvitnúce trvalky, okrasné trávy, stálozelené a opadavé kry a listnaté, ihličnaté a ovocné stromy,…

MATERIÁLOVÝ ŠTANDARD: Prémiové materiály, terazzo, travertínové obklady. 

Byty/ kancelárie sú prevažne určené na dlhodobý prenájom pre náročnú klientelu. 

Vo fotogalérii nájdete ilustračné vizuálizácie od špičkového architektonického dizajnéra. 

Neváhajte a prídte na obhliadku čím skôr a spoločne môžeme zosúladiť Vaše potreby k čo najskoršiemu dodaniu Vášho vysnívaného bývania alebo reprezentatívneho priestoru. 

Prosím neváhajte ma kontaktovať ohľadne Obhliadky a bližších informácií osobne, whats, telefonát, email. Na vyžiadanie Vám viem poslať na whatsapp videoobhliadku.

KONTAKT / CONTACT

Rebecca Real Estate

Ing. Zuzana Jankulová

0911776018/ aj WHATS

zuzana.jankulova@rebeccarealestate.sk

Vlastnosti

Status:
aktívne
Vlastníctvo:
firemné
Úžitková plocha:
41 m2
Stav:
novostavba
Terasa:
áno
Garáž:
áno
Pivnica:
áno
Verejné vonkajšie parkovanie:
áno
Sklad:
áno
Výťah:
áno
Rok poslednej rekonštrukcie:
2025
Počet poschodí od prízemia vyššie:
4
Celková plocha:
41 m2
Počet vonkajších parkovacích miest:
1
Vykurovanie - podlahové:
áno
Internet:
áno
Optická sieť:
áno
1 050 €/mesiac
Ulica: Vansová
Obec: Bratislava-Staré Mesto
Okres: Bratislava I
Kraj: Bratislavský kraj
Druh: Byty
Typ: Prenájom
Typ bytu: 1-izbový byt
Iné:

Ing. Zuzana Jankulová

  • Česky
  • Slovensky
  • English
  • Italiano

Radi Vám poradíme