Používame cookies

Súbory cookie a ďalšie technológie sledovania používame na zlepšenie vášho zážitku z prehliadania našich webových stránok, na to, aby sme vám zobrazovali prispôsobený obsah a cielené reklamy, na analýzu návštevnosti našich webových stránok a na pochopenie toho, odkiaľ naši návštevníci prichádzajú. Viac info

Rača Centrum - 2 izbový byt / Kancelária v Novostavbe s parkovaním

Popis nehnuteľnosti

Zdieľať na Facebooku

REBECCA REAL ESTATE Vám ponúka na predaj 2 izbový byt / kancelária v RAČA - CENTRUM v Bratislave. 

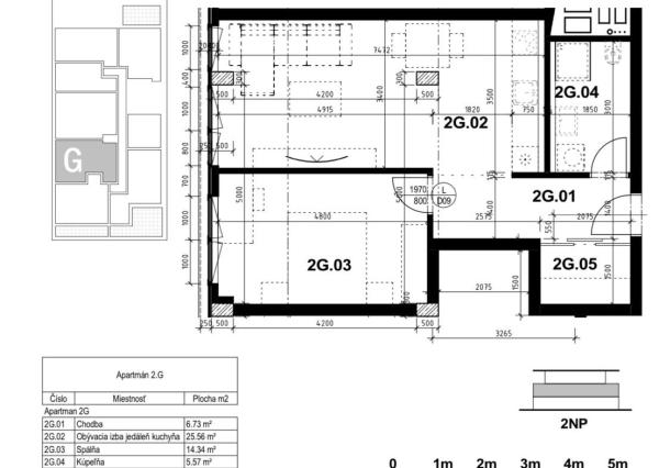
Zariadený 2-izbový byt (Nebytový priestor) o výmere 55,05 m2 v novostavbe na 1/2 poschodí s pivničnou kobkou a garážovým státím na ulici Rustaveliho v centrálnej mestkej časti Rača.

Byt pozostáva zo vstupnej chodby a samostatným šatníkom, priestranná obývačka prepojená s kuchyňou, veľkej spálne, kúpeľne so sprchovacím kútom a toaletou. 

Byt: 55,05 m2

Pivnica: 2,82 m2

Parkovacie miesto v garáži

Obývacia časť je vybavená kvalitnou sedacou súpravou. Kompletne vybavená kuchyňa so spotrebičmi s LED podsvietením. Byt je veľmi štýlovo a vkusne zariadený nábytkom na mieru.

Spálňa je vybavená manželskou posteľou s úložným priestorom s kvalitnými matracmi a roštami. Na mieru robená skriňa, ktorá ponúka množstvo úložného priestoru.

Vybavenie bytu: 

- bezpečnostné dvere, kvalitné laminátové podlahy, hliníkové okná s izolačným trojsklom, záclony, blackout závesy. 

Lokalita: centrálna časť Rače je jedna z najobľúbenejších lokalít Bratislavy s množstvom zelene, kompletnou občianskou vybavenosťou – mhd, električka, školy, škôlky, zdravotné stredisko, polícia. V blízkosti sú viaceré potraviny (LIDL, Kraj, Billa, Kaufland). Diaľničný obchvat v tesnej blízkosti napojenie na D1.

BYT je vhodný aj ako investícia. Aktuálne je prenajatý. Nehnuteľnosť je na LV vedená ako nebytový priestor.

Nehnuteľnosť sa predáva za cenu 235 000 Eur (219 000 Eur  byt + 16 000 Eur parkovacie miesto v podzemnej garáži.)

V cene je zahrnutý servis RK, kompletné sprostredkovateľské a poradenské služby a právny servis.

Pre viac informácií, obhliadky alebo detailov Vám rada poskytnem osobne, telefonicky, whats alebo emailom. Prosím neváhajte ma kontaktovať.

KONTAKT

Rebecca Real Estate

Ing. Zuzana Jankulová

0911776018 / aj WHATS

zuzana.jankulova@rebeccarealestate.sk

Vlastnosti

Status:
aktívne
Vlastníctvo:
firemné
Úžitková plocha:
55 m2
Stav:
novostavba
Počet izieb:
2
Garáž:
áno
Pivnica:
áno
Výťah:
áno
Rok kolaudácie:
2020
Celková plocha:
55 m2
Počet garáží:
1
Počet pivníc:
1
Vykurovanie - podlahové:
áno
Optická sieť:
áno

Hypotekárna kalkulačka

219 000 €
Ulica: Rustaveliho
Obec: Bratislava-Rača
Okres: Bratislava III
Kraj: Bratislavský kraj
Druh: Objekty
Typ: Predaj
Typ objektu: Kancelárie
Iné:

Ing. Zuzana Jankulová

  • Česky
  • Slovensky
  • English
  • Italiano

Radi Vám poradíme