Používame cookies

Súbory cookie a ďalšie technológie sledovania používame na zlepšenie vášho zážitku z prehliadania našich webových stránok, na to, aby sme vám zobrazovali prispôsobený obsah a cielené reklamy, na analýzu návštevnosti našich webových stránok a na pochopenie toho, odkiaľ naši návštevníci prichádzajú. Viac info

Investičný 2 izbový byt v Novostavbe - Rača Centrum

Popis nehnuteľnosti

Zdieľať na Facebooku

REBECCA REAL ESTATE Vám ponúka na predaj 2 izbový byt v RAČA - CENTRUM v Bratislave. 

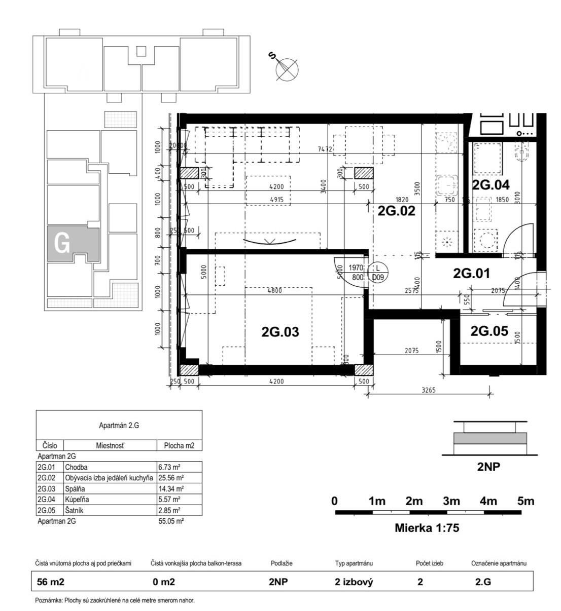
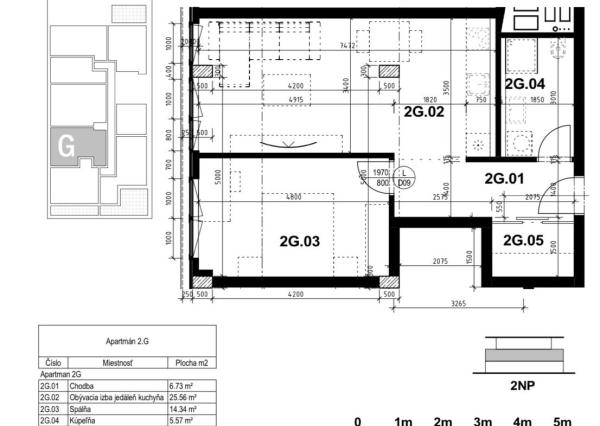
Zariadený 2-izbový byt o výmere 55,05 m2 v novostavbe na 1/2 poschodí s pivničnou kobkou a garážovým státím na ulici Rustaveliho v mestkej časti Rača.

Byt pozostáva zo vstupnej chodby a šatníkom, priestranná obývačka prepojená s kuchyňou, veľkej spálne, kúpeľne so sprchovacím kútom a toaletou. 

Byt: 55,05 m2

Pivnica: 2,82 m2

Parkovacie miesto v garáži

Obývacia časť je vybavená kvalitnou sedacou súpravou. Kompletne vybavená kuchyňa so spotrebičmi s LED podsvietením. Byt je veľmi štýlovo a vkusne zariadený.  

Spálňa je vybavená manželskou posteľou s úložným priestorom s kvalitnými matracmi a roštami. Na mieru robená skriňa z masívneho dreva, ktorá ponúka množstvo úložného priestoru.

Vybavenie bytu: 

- bezpečnostné dvere, kvalitné laminátové podlahy, hliníkové okná s izolačným trojsklom, záclony, blackout závesy. 

- podlahové kúrenie

Lokalita: centrálna časť Rače je jedna z najobľúbenejších lokalít Bratislavy s množstvom zelene, kompletnou občianskou vybavenosťou – mhd, električka, školy, škôlky, zdravotné stredisko, polícia. V blízkosti sú viaceré potraviny (LIDL, Kraj, Billa, Kaufland). Diaľničný obchvat v tesnej blízkosti napojenie na D1.

BYT je vhodný aj ako investícia. Aktuálne je prenajatý. Možnosť pokračovania v prenájme. Nehnuteľnosť je na LV vedená ako nebytový priestor.

Nehnuteľnosť sa predáva za cenu ...........  Eur.

V cene je zahrnutý servis RK, kompletné sprostredkovateľské a poradenské služby a právny servis.

Pre viac informácií, obhliadky alebo detailov Vám rada poskytnem osobne, telefonicky, whats alebo emailom. Prosím neváhajte ma kontaktovať.

KONTAKT

Rebecca Real Estate

Ing. Zuzana Jankulová

0911776018 / aj WHATS

zuzana.jankulova@rebeccarealestate.sk

Vlastnosti

Status:
aktívne
Vlastníctvo:
firemné
Úžitková plocha:
55 m2
Stav:
novostavba
Počet izieb:
2
Garáž:
áno
Pivnica:
áno
Výťah:
áno
Rok kolaudácie:
2020
Celková plocha:
55 m2
Počet garáží:
1
Počet pivníc:
1
Vykurovanie - podlahové:
áno
Optická sieť:
áno
Cena v RK
Ulica: Rustaveliho
Obec: Bratislava-Rača
Okres: Bratislava III
Kraj: Bratislavský kraj
Druh: Byty
Typ: Predaj
Typ bytu: 2-izbový byt
Iné:

Ing. Zuzana Jankulová

  • Česky
  • Slovensky
  • English
  • Italiano

Radi Vám poradíme